Objektart
Adresse
Objektdaten
Informationen
Ausstattung
Details
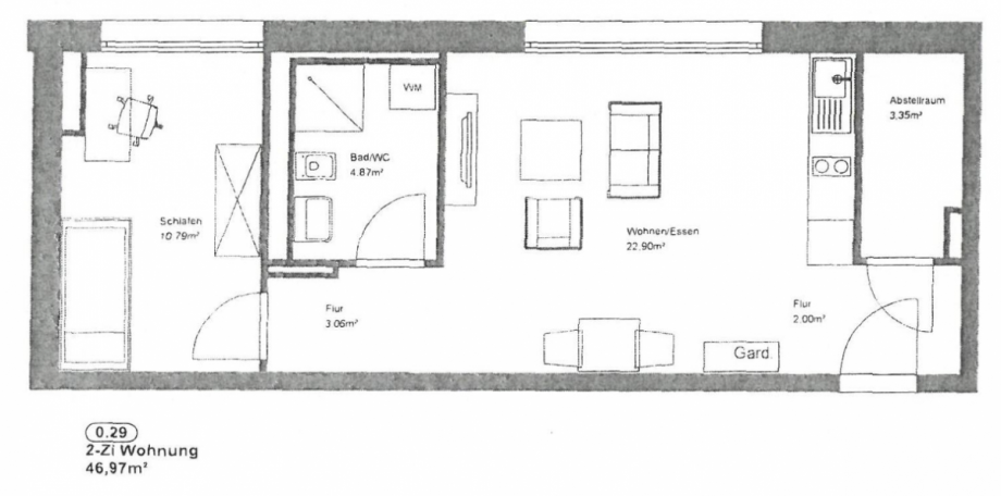
Diese gemütliche 2-Zimmer-Wohnung befindet sich im 1.OG eines gepflegten Mehrfamilienhauses in Bamberg und bietet eine Wohnfläche von 46,97 m². Die Wohnung verfügt über zwei helle, gut geschnittene Räume, die ideal für Singles oder Paare geeignet sind.
Ein besonderes Highlight der Wohnung ist die offene Gestaltung des Wohnbereichs.. Diese offene Raumgestaltung fördert ein geselliges Ambiente und ermöglicht Ihnen, beim Kochen mit Familie und Freunden in Kontakt zu bleiben. Die großen Fenster sorgen für viel Tageslicht und schaffen eine einladende Atmosphäre.
Heizkosten und Wasser sind nicht in den Nebenkosten inbegriffen, hier muss eigenständig ein Vertrag durch die Mieter mit den Stadtwerken geschlossen werden.
o Wohnbereich mit offener Küche
o Hochwertige Sanitärausstattung: Das Badezimmer bietet moderne, langlebige und stilvolle Sanitärobjekte.
o Design-Vinylboden mit Echtholz-Dekor: Der Bodenbelag ist ein Vinylboden, der das Aussehen von Echtholz imitiert und gleichzeitig pflegeleicht sowie widerstandsfähig ist.
o Fußbodenheizung: Die Wohnung ist mit einer Fußbodenheizung ausgestattet, was eine angenehme und effiziente Wärmeverteilung ermöglicht.
o Klingeltableaus mit Videosprechanlagen: Zur Sicherheit und Bequemlichkeit ist die Wohnung mit einer modernen Videosprechanlage ausgestattet.
o Wohnungseingangstüren mit 3-fach Verriegelung: Die Türen bieten zusätzlichen Schutz durch eine hochwertige Verriegelung, die auch den Schallschutz sowie den Klimaschutz (z. B. Energieeffizienz) unterstützt.
Eine Abstellfläche für Ihr Auto im nahgelegenen Parkhaus gehört zu der Wohnung.
Der La Garde Komplex befindet sich in einer attraktiven und ruhigen Wohngegend in Bamberg, einer Stadt, die für ihre historische Altstadt und ihr reiches kulturelles Erbe bekannt ist. Die Lorenz-Krapp-Straße liegt in unmittelbarer Nähe zu zahlreichen Annehmlichkeiten, die das tägliche Leben erleichtern.
In der Umgebung finden Sie eine Vielzahl von Einkaufsmöglichkeiten, darunter Supermärkte, Bäckereien und Fachgeschäfte, die fußläufig erreichbar sind. Auch verschiedene Restaurants und Cafés laden dazu ein, die lokale Gastronomie zu genießen. Für Familien sind Schulen und Kindergärten in der Nähe, was die Lage besonders attraktiv für Eltern macht.
Die Anbindung an den öffentlichen Nahverkehr ist hervorragend. Haltestellen für Busse und Straßenbahnen sind in wenigen Minuten zu Fuß erreichbar, sodass Sie schnell und bequem ins Stadtzentrum oder zu anderen Stadtteilen gelangen. Zudem sind die wichtigsten Verkehrsachsen gut erreichbar, was Pendlern eine unkomplizierte Anreise ermöglicht.
Die Umgebung des La Garde Komplexes bietet zudem zahlreiche Freizeitmöglichkeiten. Parks und Grünflächen laden zu Spaziergängen und sportlichen Aktivitäten ein, während die historische Altstadt von Bamberg mit ihren Sehenswürdigkeiten und kulturellen Veranstaltungen nur eine kurze Fahrt entfernt ist.
Insgesamt bietet der La Garde Komplex in der Lorenz-Krapp-Straße eine ideale Kombination aus urbanem Leben und ruhiger Wohnatmosphäre, die sowohl Singles als auch Familien anspricht. Hier genießen Sie die Vorzüge einer lebendigen Stadt, ohne auf die Ruhe und den Komfort eines modernen Wohnumfelds verzichten zu müssen.
Haben Sie Interesse an unserer hochwertigen Wohnung auf dem La Garde Gelände in Bamberg?
Kontaktieren Sie uns gerne unter kontakt@immo-lessmann.de um weitere Informationen zu erhalten.
Wir freuen uns auf Ihre Nachricht und stehen Ihnen bei Fragen gerne zur Verfügung!
Immobilien- und Hausverwaltung Lessmann GmbH
https://www.immo-lessmann.de
Ich bin damit einverstanden, dass mir Karten von Google angezeigt werden. Es gelten die Datenschutzbedingungen von Google (https://policies.google.com/privacy).
Ich bin einverstanden