Objektart
Adresse
Objektdaten
Informationen
Ausstattung
Details
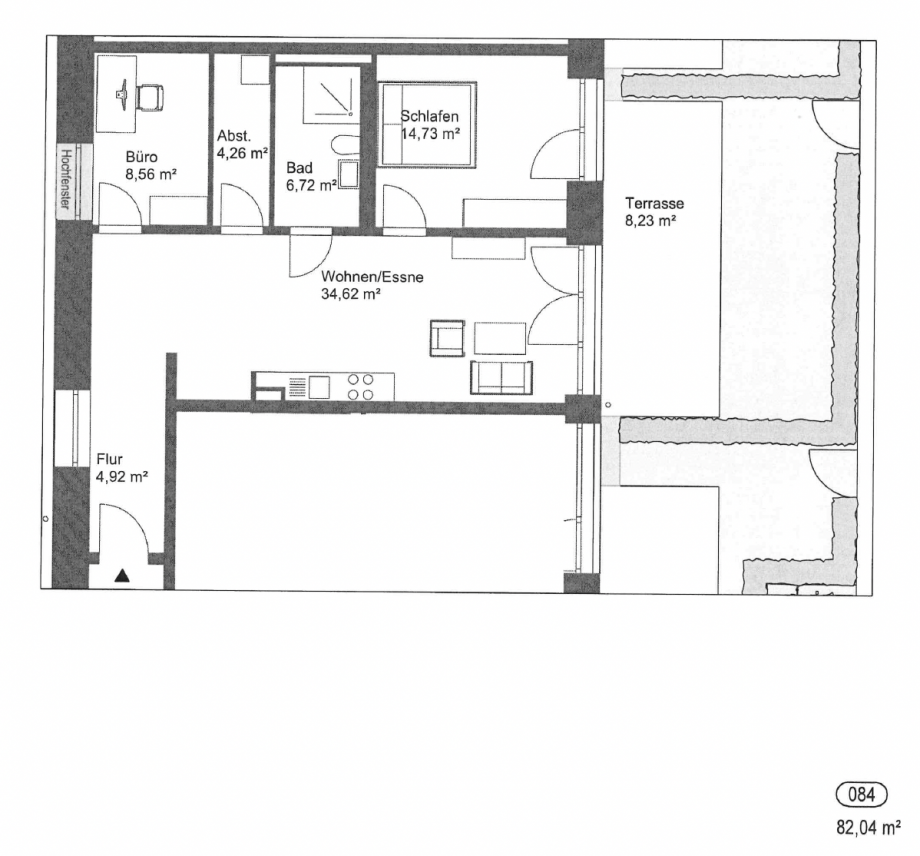
Diese attraktive Erdgeschosswohnung befindet sich in einem modernen Mehrfamilienhaus und wird als Erstbezug angeboten. Die Wohnung überzeugt durch einen durchdachten Grundriss, großzügige Raumgestaltung sowie eine Terrasse mit angrenzendem Gartenanteil.
Das Herzstück der Wohnung bildet der offen gestaltete Wohn- und Essbereich mit ca. 34,62 m². Hier entsteht ein helles und großzügiges Wohngefühl mit direktem Zugang zur Terrasse und in den eigenen Garten - ideal zum Entspannen, für gesellige Abende oder als erweiterter Wohnraum in den Sommermonaten.
Das Schlafzimmer bietet eine angenehme Größe und überzeugt durch seinen direkten Zugang zur Terrasse sowie in den Garten, wodurch eine helle und besonders wohnliche Atmosphäre entsteht. Ein weiteres Zimmer eignet sich ideal als Büro, Gäste- oder Kinderzimmer.
Das Badezimmer rundet das Raumangebot komfortabel ab. Zusätzlich steht ein praktischer Abstellraum innerhalb der Wohnung zur Verfügung und sorgt für wertvollen Stauraum.
Die Wohnung befindet sich im Erdgeschoss und bietet durch die Terrasse mit Garten ein besonderes Wohngefühl - optimal geeignet für Paare oder kleine Haushalte, die Wert auf Komfort und Freiraum legen.
Ausstatung der Wohnung
o Hochwertige Badausstattung: Das Badezimmer ist mit eleganten, modernen Fliesen sowie einer bodengleichen Dusche ausgestattet - stilvoll und funktional zugleich.
o Echtholzdekor-Vinylboden: Im gesamten Wohnbereich wurde ein hochwertiger Vinylboden in Echtholzoptik verlegt, der eine warme Atmosphäre schafft und zugleich pflegeleicht ist.
o Fußbodenheizung: Für ein angenehmes Raumklima sorgt die flächendeckende Fußbodenheizung in allen Wohnräumen.
o Sicherheit und Komfort: Die Wohnungseingangstür ist mit einer Dreifachverriegelung ausgestattet und bietet ein hohes Maß an Sicherheit.
o Moderne Kommunikation: Ein Klingel-Tableau mit Video-Sprechanlage ermöglicht komfortable und sichere Besucherkommunikation.
Diese Ausstattung steht für zeitgemäßen Wohnkomfort auf hohem Niveau - perfekt abgestimmt auf die Ansprüche modernen Wohnens.
Die Highlights kurz zusammengefasst:
o Wohnfläche: ca. 82,04 m²
o Zimmer: 3 (ideal als Single-, Paar- oder kleine Familienwohnung)
o 1 Terrasse und Gartenanteil: Einladend und großzügig - ideal zum Entspannen
o Badezimmer: Modern ausgestattet mit ebenerdiger Dusche
o Praktischer Abstellraum in der Wohnung
Heizkosten und Wasser sind nicht in den Nebenkosten inbegriffen, hier muss eigenständig ein Vertrag durch die Mieter mit den Stadtwerken geschlossen werden.
Der La Garde Komplex befindet sich in einer attraktiven und ruhigen Wohngegend in Bamberg, einer Stadt, die für ihre historische Altstadt und ihr reiches kulturelles Erbe bekannt ist. Die Lorenz-Krapp-Straße liegt in unmittelbarer Nähe zu zahlreichen Annehmlichkeiten, die das tägliche Leben erleichtern.
In der Umgebung finden Sie eine Vielzahl von Einkaufsmöglichkeiten, darunter Supermärkte, Bäckereien und Fachgeschäfte, die fußläufig erreichbar sind. Auch verschiedene Restaurants und Cafés laden dazu ein, die lokale Gastronomie zu genießen. Für Familien sind Schulen und Kindergärten in der Nähe, was die Lage besonders attraktiv für Eltern macht.
Die Anbindung an den öffentlichen Nahverkehr ist hervorragend. Haltestellen für Busse und Straßenbahnen sind in wenigen Minuten zu Fuß erreichbar, sodass Sie schnell und bequem ins Stadtzentrum oder zu anderen Stadtteilen gelangen. Zudem sind die wichtigsten Verkehrsachsen gut erreichbar, was Pendlern eine unkomplizierte Anreise ermöglicht.
Die Umgebung des La Garde Komplexes bietet zudem zahlreiche Freizeitmöglichkeiten. Parks und Grünflächen laden zu Spaziergängen und sportlichen Aktivitäten ein, während die historische Altstadt von Bamberg mit ihren Sehenswürdigkeiten und kulturellen Veranstaltungen nur eine kurze Fahrt entfernt ist.
Insgesamt bietet der La Garde Komplex in der Lorenz-Krapp-Straße eine ideale Kombination aus urbanem Leben und ruhiger Wohnatmosphäre, die sowohl Singles als auch Familien anspricht. Hier genießen Sie die Vorzüge einer lebendigen Stadt, ohne auf die Ruhe und den Komfort eines modernen Wohnumfelds verzichten zu müssen.
Haben wir Ihr Interesse geweckt und Sie haben Lust auf einen Besichtigungstermin?
Wir freuen uns auf Ihre Nachricht und stehen Ihnen bei Fragen unter kontakt@immo-lessmann.de gerne zur Verfügung!
Immobilien- und Hausverwaltung Lessmann GmbH
https://www.immo-lessmann.de
Ich bin damit einverstanden, dass mir Karten von Google angezeigt werden. Es gelten die Datenschutzbedingungen von Google (https://policies.google.com/privacy).
Ich bin einverstanden