Objektart
Adresse
Objektdaten
Informationen
Ausstattung
Details
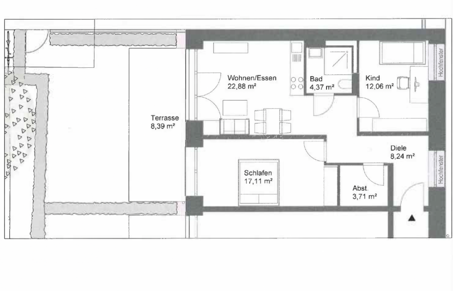
Diese ansprechende 3-Zimmer-Wohnung mit einer Wohnfläche von 76,76 m² überzeugt durch ihre freundlich hellen Räume und eine gut durchdachte Aufteilung. Die großen Fenster sorgen für eine angenehme Wohnatmosphäre und verleihen der Wohnung ein offenes, einladendes Gefühl.
Der Wohnbereich bietet ausreichend Platz für individuelle Gestaltungsmöglichkeiten und verfügt über einen direkten Zugang zur Terrasse, die sich ideal für kleine Sitzgelegenheiten oder entspannte Stunden im Freien eignet. Ein kleiner Gartenanteil schließt sich an und bietet eine zusätzliche, praktische Außenfläche.
Die Wohnung ist mit einer Einbauküche ausgestattet, die funktional eingerichtet ist und genügend Stauraum bietet. Zwei weitere Zimmer lassen sich flexibel als Schlaf-, Arbeits- oder Kinderzimmer nutzen.
Insgesamt bietet die Wohnung eine komfortable Wohnlösung in angenehmer Umgebung, geeignet für Singles, Paare oder kleine Familien.
Bitte beachten Sie: Heiz- und Wasserkosten sind nicht in den Nebenkosten enthalten. Die Mieter müssen eigenständig einen Vertrag mit den örtlichen Stadtwerken abschließen, um diese Dienstleistungen zu beziehen.
Ausstattung:
o Wohnfläche: ca. 76,76 m², 3 Zimmer
o Terrasse mit Garten
o Neubau mit moderner Ausstattung
o Hochwertiger Vinylboden in Holzoptik
o Badezimmer mit ebenerdiger Dusche und modernen Fliesen
o Fußbodenheizung in allen Räumen
o Video-Sprechanlage mit Farbdisplay
o Abstellraum
o Stellplatz im Parkhaus
o Einbauküche
o Waschmaschine
Mit dieser 3-Zimmerwohnung in den Sunshine Lofts entscheiden Sie sich für modernes Wohnen mit durchdachter Ausstattung, attraktiver Lage und urbanem Lifestyle.
Die Wärme- und Wasserkosten werden mit den Stadtwerken Bamberg direkt abgerechnet. Hier sollten Sie für das erste Jahr monatlich ca. 154,00 EUR kalkulieren.
Der La Garde Komplex befindet sich in einer attraktiven und ruhigen Wohngegend in Bamberg, einer Stadt, die für ihre historische Altstadt und ihr reiches kulturelles Erbe bekannt ist. Die Lorenz-Krapp-Straße liegt in unmittelbarer Nähe zu zahlreichen Annehmlichkeiten, die das tägliche Leben erleichtern.
In der Umgebung finden Sie eine Vielzahl von Einkaufsmöglichkeiten, darunter Supermärkte, Bäckereien und Fachgeschäfte, die fußläufig erreichbar sind. Auch verschiedene Restaurants und Cafés laden dazu ein, die lokale Gastronomie zu genießen. Für Familien sind Schulen und Kindergärten in der Nähe, was die Lage besonders attraktiv für Eltern macht.
Die Anbindung an den öffentlichen Nahverkehr ist hervorragend. Haltestellen für Busse und Straßenbahnen sind in wenigen Minuten zu Fuß erreichbar, sodass Sie schnell und bequem ins Stadtzentrum oder zu anderen Stadtteilen gelangen. Zudem sind die wichtigsten Verkehrsachsen gut erreichbar, was Pendlern eine unkomplizierte Anreise ermöglicht.
Die Umgebung des La Garde Komplexes bietet zudem zahlreiche Freizeitmöglichkeiten. Parks und Grünflächen laden zu Spaziergängen und sportlichen Aktivitäten ein, während die historische Altstadt von Bamberg mit ihren Sehenswürdigkeiten und kulturellen Veranstaltungen nur eine kurze Fahrt entfernt ist.
Insgesamt bietet der La Garde Komplex in der Lorenz-Krapp-Straße eine ideale Kombination aus urbanem Leben und ruhiger Wohnatmosphäre, die sowohl Singles als auch Familien anspricht. Hier genießen Sie die Vorzüge einer lebendigen Stadt, ohne auf die Ruhe und den Komfort eines modernen Wohnumfelds verzichten zu müssen.
aben Sie Interesse an unserer hochwertigen Wohnung auf dem La Garde Gelände in Bamberg?
Kontaktieren Sie uns gerne unter kontakt@immo-lessmann.de um weitere Informationen zu erhalten.
Wir freuen uns auf Ihre Nachricht und stehen Ihnen bei Fragen gerne zur Verfügung!
Immobilien- und Hausverwaltung Lessmann GmbH
https://www.immo-lessmann.de
Ich bin damit einverstanden, dass mir Karten von Google angezeigt werden. Es gelten die Datenschutzbedingungen von Google (https://policies.google.com/privacy).
Ich bin einverstanden